Remax Monarcha

Prodej pozemku pro bydlení, Olomouc - Nové Sady, Andělská, 2198 m2

Andělská, Nové Sady

2 990 Kč /za metr čtvereční HYPOTÉKA od 13 Kč /za měsíc
Exkluzivní partneři v Olomouci

Informace k pozemku

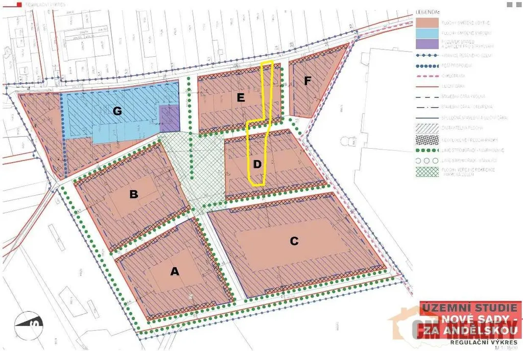
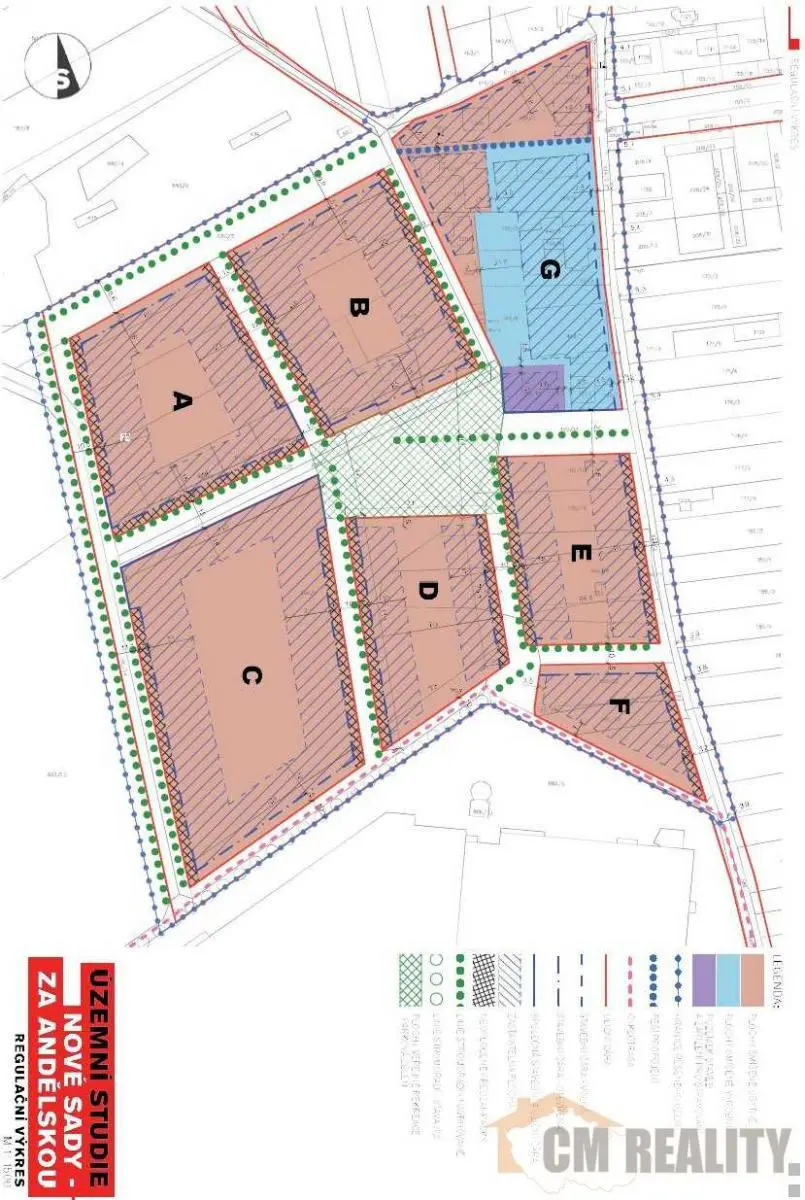
S výhradním zastoupením nabízíme k prodeji pozemek p.č. 180/19 - o výměře 2198 m2 v obci Olomouc, v místní části Nové Sady. Pozemek je veden v územním plánu v plochách smíšené obytné a veřejné rekreace. Na pozemek byla Městem Olomouc vypracována územní studie and #34;Nové Sady - Za Andělskou and #34;, kdy celá lokalita bude určena pro zástavbu rodinnými domy. Navazující pozemek s výměrou necelé 3ha je ve vlastnictví města Olomouc. Výborná investiční příležitost. Ceny stavebně připravených pozemků v Olomouci se pohybují 6tis. až 10tis.Kč/m2 a stále rostou.

Parametry pozemku

Cena
2 990 Kč /za metr čtvereční Spočítat hypotéku
Aktualizováno
27. 1. 2025
Adresa
Andělská, Nové Sady
ID
1029
Plocha pozemku
2198 m2
Bezbarierový přístup

Kontaktovat makléře

Realitní kancelář

Logo CM reality

CM reality

Poděbradovo nám. 980/11, Prostějov

Chystáte se prodat nemovitost?
Pomůžeme Vám!

Máte zájem o tento pozemek?

Tímto, v souladu s nařízením Evropského parlamentu a Rady (EU) 2016/679, v platném znění, prohlašuji, že mi je alespoň 16 let a uděluji tak svůj souhlas se zpracováním zadaných údajů (jméno, telefon, e-mail, ip adresa) společnosti B3 Technology, s.r.o., IČ: 07330600, se sídlem Novostavby 126/23, 435 11 Lom (správce dat), za účelem předání dotazu z tohoto formuláře Vámi vybranému inzerentovi a zpětného kontaktování mé osoby. Osobní údaje bude správce zpracovávat manuálně i automaticky přímo prostřednictvím svých zaměstnanců. Informace předané tímto formulářem budou uloženy v databázi správce maximálně po dobu 10 let. Odvolání souhlasu s uložením a zpracováním poskytnutých dat lze e-mailem na info@vitio.cz. V případě podezření na neoprávněné použití Vámi poskytnutých údajů máte právo předat podnět k šetření Úřadu pro ochranu osobních údajů. Více informací
Chystáte se prodat nemovitost?
Pomůžeme Vám!

Inzerát si prohlédlo 13 lidí

Prodejce

Ing. David Foretek

Ing. David Foretek

Hlídací pes

Chcete dostávat emailem podobné nabídky prodeje pozemků pro bydlení v Olomouci?

Podobné nemovitosti