Prodej bytu 2+kk, Ježov, 75 m2 (ID: 2144612)

Ježov

3 680 000 Kč /za nemovitost HYPOTÉKA od 16 447 Kč /za měsíc

(včetně DPH, včetně provize, včetně právního servisu)

Exkluzivní partneři v Ježově

Informace k bytu

ID: 02047
Richard Bábík & Explicit Reality vám exkluzivně nabízí ke koupi bytovou jednotku v novostavbě developerského projektu Vávrův mlýn v Ježově.

Projekt je navržen s důrazem na kvalitní architekturu, nadčasové materiály a klidné prostředí s dostatkem soukromí. Bytový dům je realizován ve vyšším stavebním standardu s ohledem na tepelný i akustický komfort a nízké provozní náklady.

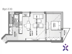
Nabízený byt o dispozici 2+kk má podlahovou plochu 57 m² a nachází se ve 3. nadzemním podlaží domu. Součástí bytu je sklepní kóje o velikosti 16 m².

V bezprostřední blízkosti domu je k dispozici možnost parkování na přilehlém pozemku ve vlastnictví obce, a to na základě smluvního vztahu mezi obcí a developerem. Parkování není součástí vlastnického práva k bytové jednotce.

Byt je orientován na jihovýchod, balkon přístupný z ložnice směřuje na jihozápad.

Bytový dům zahrnuje celkem 12 bytových jednotek a splňuje energetickou třídu B. Obvodové konstrukce jsou provedeny z keramických cihel Porotherm 38 T Profi, které zajišťují velmi dobré tepelně-izolační vlastnosti.
Plastová okna s pětikomorovým profilem a izolačními trojskly přispívají k celkovému komfortu bydlení.
Vytápění bytu je řešeno plynovým kondenzačním kotlem. Ohřev teplé vody je v každém bytě zajištěn vlastním elektrickým bojlerem, což znamená plnou kontrolu nad spotřebou.
Interiér bytu zahrnuje:
- vinylové podlahy v obytných místnostech
- keramickou dlažbu a obklady v koupelně
- závěsné WC Geberit
- sprchový kout a sanitární keramiku
- bezpečnostní vstupní dveře s protipožární ochranou
Byt je nabízen bez kuchyňské linky.

V bezprostřední blízkosti domu se nachází nově vybudovaná rekreační a volnočasová zóna, vhodná pro sport, odpočinek i setkávání.

Obec Ježov leží přibližně 7 km severovýchodně od Kyjova a je součástí mikroregionu Podchřibí. V obci funguje základní a mateřská škola v jednom areálu, včetně školní družiny, školní jídelny a sportovišť, což vytváří kvalitní zázemí zejména pro rodiny s dětmi.
Součástí obce je také obchod s potravinami, pošta, ordinace praktického lékaře a hostinec se sezónním (letním) provozem. Dopravní obslužnost je zajištěna autobusovou dopravou.

Okolní Chřiby nabízejí ideální podmínky pro turistiku, cyklistiku a aktivní trávení volného času.

Výstavba projektu aktuálně probíhá, plánované dokončení je 2. kvartál roku 2026.
Developer nabízí možnost výhodného financování od 2,9 % p.a.

Kompletní informace o projektu Vávrův mlýn, půdorysy bytů a aktuální dostupnost naleznete na oficiálním webu projektu Vávrův mlýn Ježov.

Pro sjednání prohlídky mě neváhejte kontaktovat. Rád se s vámi setkám.

Richard Bábík & Explicit Reality

Parametry bytu

Cena
3 680 000 Kč /za nemovitost Spočítat hypotéku
Poznámka k ceně
včetně DPH, včetně provize, včetně právního servisu
Aktualizováno
19. 3. 2026
Adresa
Ježov
ID
02047
Stavba
Cihlová
Stav objektu
Ve výstavbě
Patro
3. z 4
Vybaveno
Ne
Druh objektu
Rohový
Lokalita objektu
Centrum obce
Vlastnictví
Osobní
Užitná plocha
57 m2
Podlahová plocha
75 m2
Třída energetické náročnosti
B - Velmi úsporná
Ukazatel energetické náročnosti
70.6 kWh/m2 za rok
Elektřina
230V
Plyn
Plynovod
Odpad
Veřejná kanalizace
Topení
Ústřední plynové
Komunikace
Asfaltová
Telekomunikace
Internet, Satelit, Kabelová televize
Doprava
Silnice, Autobus
Voda
Vodovod
Balkon
Sklep
Výtah
Parkování

Kontaktovat makléře

Máte zájem o tento byt?

Tímto, v souladu s nařízením Evropského parlamentu a Rady (EU) 2016/679, v platném znění, prohlašuji, že mi je alespoň 16 let a uděluji tak svůj souhlas se zpracováním zadaných údajů (jméno, telefon, e-mail, ip adresa) společnosti B3 Technology, s.r.o., IČ: 07330600, se sídlem Novostavby 126/23, 435 11 Lom (správce dat), za účelem předání dotazu z tohoto formuláře Vámi vybranému inzerentovi a zpětného kontaktování mé osoby. Osobní údaje bude správce zpracovávat manuálně i automaticky přímo prostřednictvím svých zaměstnanců. Informace předané tímto formulářem budou uloženy v databázi správce maximálně po dobu 10 let. Odvolání souhlasu s uložením a zpracováním poskytnutých dat lze e-mailem na info@vitio.cz. V případě podezření na neoprávněné použití Vámi poskytnutých údajů máte právo předat podnět k šetření Úřadu pro ochranu osobních údajů. Více informací
Chystáte se prodat nemovitost?
Pomůžeme Vám!

Inzerát si prohlédlo 56 lidí

Prodejce

Richard Bábík

Richard Bábík

Hlídací pes

Chcete dostávat emailem podobné nabídky prodeje bytů 2+kk v Ježově (okr. Hodonín)?

Podobné nemovitosti