Pronájem obchodního prostoru, Praha - Háje, Hviezdoslavova, 661 m2

Hviezdoslavova, Praha 4, Háje

250 000 Kč /za měsíc Získejte výhodnou HYPOTÉKU

(+ DPH, + energie)

Exkluzivní partneři v Praze 4

Stěhovací služby

Výkup a prodej starého nábytku

Informace k nemovitosti

Nabízíme Vám k pronájmu velmi prostornou, komerční budovu – převážně obchodní, kancelářské a skladovací prostory, přímo v centu města Praha 4 – Háje, v ulici Hviezdoslavova.

Jedná se o budovu provozovanou doposud jako obchodní a skladovací prostor internetového ochodu s počítači a elektronikou, s několikaletou tradicí.

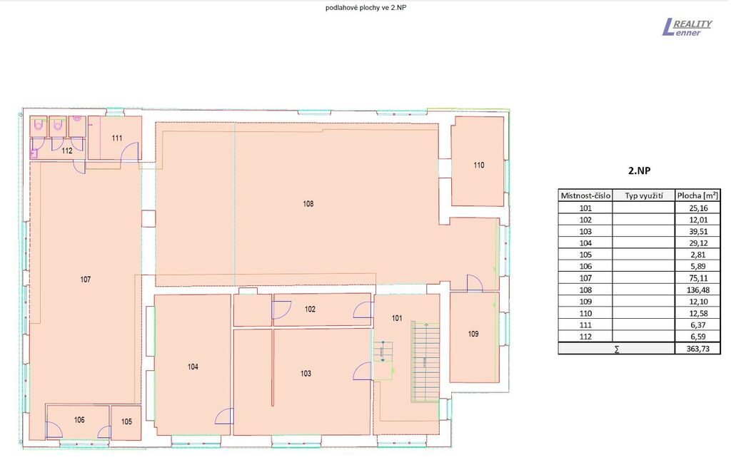
Nabízí cekem 661 m2 užitné plochy ve 2 nadzemních podlaží. V 1. NP plocha 297 m2 převážně skladovací prostory a příslušenství (oddělené toalety, tech. místnost, sklad, koupelna vč. sprch. koutu, kuchyně s jídelnou) a ve 2. NP plocha 364 m2 (hlavní obchodní prostor, kanceláře, WC, sklad, kuchyně s jídelnou).

Vše se nachází na pozemku s celkovou výměrou 892 m2 vč. vlastního parkoviště před budovou na pozemku 367 m2.

Prostory jsou volné ihned k dispozici. V případě dohody se lze dohodnout na vybavení a zařízení.

Preferujeme dlouhodobý nájem na dobu neurčitou s výpovědní lhůto min. 9 měsíců.

Budova má: fasádu vč. zateplení polystyrenem, plastová okna vč. izol. dvojskel, vytápění ve 2. NP rozvody UT deskové radiátory vč. rozvodů v Cu, v přízemí ve skladu vzduchotechnika, zabezpečení Jablotron, možnost připojení pevného internetu s rychlostí až 2 GB/s, voda a odpady v plastu, elektřina částečně rozvody v mědí, osvětlení (1. NP sklad zářivky, 2. NP LED osvětlení), do skladu sekční dálkově ovládaná gar. vrat, v budově centrální vysavač, 2x trezor, posuvné vchodové portály, interiérové dveře vč. ocel. zárubní, podlahy převážně dlažby, plovoucí a linolea.

Sítě: obecní vodovod, kanalizace a elektřina. Vytápění centárlní topení Pražské teplárny (objekt byl dříve městskou kotelnou).

Energetický štítek připravujeme, proto prozatím uvádíme třídu G.

V případě zájmu o nezávaznou prohlídku prosím kontaktuje pouze níže uvedeného zprostředkovatele.

Děkujeme za respektování soukromí majitele objektu a současného nájemce vč. zaměstnanců.

Parametry nemovitosti

Cena
250 000 Kč /za měsíc
Poznámka k ceně
+ DPH, + energie
Aktualizováno
13. 11. 2025
Adresa
Hviezdoslavova, Praha 4, Háje
ID
N03912
Stavba
Cihlová
Stav objektu
Po rekonstrukci
Typ objektu
Patrový
Lokalita objektu
Centrum obce
Vlastnictví
Osobní
Užitná plocha
661 m2
Zastavěná plocha
525 m2
Podlahová plocha
661 m2
Plocha pozemku
892 m2
Třída energetické náročnosti
G - Mimořádně nehospodárná
Elektřina
230V
Odpad
Veřejná kanalizace
Topení
Ústřední dálkové
Komunikace
Asfaltová
Telekomunikace
Telefon, Internet, Ostatní
Doprava
Vlak, Silnice, MHD, Autobus
Voda
Vodovod

Kontaktovat makléře

Realitní kancelář

Logo Reality Lenner

Reality Lenner

Gen. R. Tesaříka 256, Příbram

Chystáte se prodat nemovitost?
Pomůžeme Vám!

Máte zájem o tuto nemovistost?

Tímto, v souladu s nařízením Evropského parlamentu a Rady (EU) 2016/679, v platném znění, prohlašuji, že mi je alespoň 16 let a uděluji tak svůj souhlas se zpracováním zadaných údajů (jméno, telefon, e-mail, ip adresa) společnosti B3 Technology, s.r.o., IČ: 07330600, se sídlem Novostavby 126/23, 435 11 Lom (správce dat), za účelem předání dotazu z tohoto formuláře Vámi vybranému inzerentovi a zpětného kontaktování mé osoby. Osobní údaje bude správce zpracovávat manuálně i automaticky přímo prostřednictvím svých zaměstnanců. Informace předané tímto formulářem budou uloženy v databázi správce maximálně po dobu 10 let. Odvolání souhlasu s uložením a zpracováním poskytnutých dat lze e-mailem na info@vitio.cz. V případě podezření na neoprávněné použití Vámi poskytnutých údajů máte právo předat podnět k šetření Úřadu pro ochranu osobních údajů. Více informací
Chystáte se prodat nemovitost?
Pomůžeme Vám!

Inzerát si prohlédlo 17 lidí

Prodejce

Tomáš Lenner

Tomáš Lenner

Hlídací pes

Chcete dostávat emailem podobné nabídky pronájmu obchodních prostor v Praze 4?

Podobné nemovitosti