Pronájem obchodního prostoru, Praha - Krč, Horáčkova, 165 m2 (ID: 2105675)

Horáčkova, Praha 4

45 500 Kč /za měsíc Získejte výhodnou HYPOTÉKU
Exkluzivní partneři v Praze 4

Stěhovací služby

Výkup a prodej starého nábytku

Pojištění a finance

Informace k nemovitosti

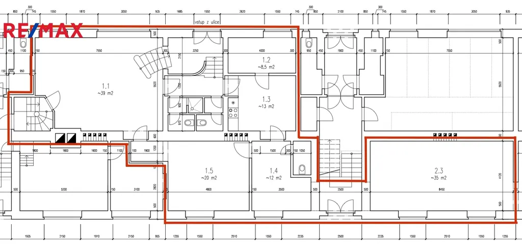
Nabízím k pronájmu obchodní prostory o celkové velikosti 165 m², v ulici Horáčkova.

Pronajímaný prostor v bytovém domě je využitelný jak pro obchod tak i pro služby, případně jako výdejna a zázemí e-shopu
nebo prezentační prostor s kancelářským a obchodním zázemím.

Obchodní prostory se skládají ze samostatné místnosti s hlavní výlohou prodejny (provozovny) s přímým vstupem z ulice.
Další místností je samostatná kancelář s oknem do ulice, dvě další místnosti mají okna orientována do vnitrobloku.
Zázemí sestává z kuchyňky, WC a sprchy. Druhé WC je možné využít pro klienty.
Prostorný sklad 39m² pod hlavní částí je přístupný po schodišti.
Pro lepší představu doporučuji prohlédnout si virtuální prohlídku , klepněte na modrou ikonu 360 stupňů.

Místo před vchodem a hlavní výlohou je možné využít k vykládce a nakládce zboží, případně pro zastavení a vyzvednutí zásilky.
V těsné blízkosti se nachází První jazyková ZŠ v Praze 4, Horáčkova 1100 a volnočasová centra pro aktivity dětí a mládeže.

Zvu Vás na prohlídku po telefonické domluvě.

Měsíční nájem je 43 500,- Kč
Elektřina a plyn budou přepsány na nájemníka
Voda se platí zálohově majiteli
Ostatní poplatky: 2 000 Kč/měsíc
Kauce: dva nájmy
Pronajímající si vyhrazuje právo vybrat nájemce na základě jím zvolených kritérií.

Parametry nemovitosti

Cena
45 500 Kč /za měsíc
Aktualizováno
28. 4. 2026
Adresa
Horáčkova, Praha 4
ID
262-NP00447
Stavba
Smíšená
Stav objektu
Velmi dobrý
Vybaveno
Ne
Typ objektu
Patrový
Užitná plocha
165 m2
Zastavěná plocha
234 m2
Třída energetické náročnosti
G - Mimořádně nehospodárná
Elektřina
230V, 400V
Plyn
Plynovod
Odpad
Veřejná kanalizace
Topení
Lokální plynové
Telekomunikace
Internet
Doprava
Dálnice, Silnice
Voda
Vodovod
Převod do OV
Parkování

Kontaktovat makléře

Realitní kancelář

Logo RE/MAX Scopus

RE/MAX Scopus

Olbrachtova 1065/46, Praha 4

Chystáte se prodat nemovitost?
Pomůžeme Vám!

Máte zájem o tuto nemovistost?

Tímto, v souladu s nařízením Evropského parlamentu a Rady (EU) 2016/679, v platném znění, prohlašuji, že mi je alespoň 16 let a uděluji tak svůj souhlas se zpracováním zadaných údajů (jméno, telefon, e-mail, ip adresa) společnosti B3 Technology, s.r.o., IČ: 07330600, se sídlem Novostavby 126/23, 435 11 Lom (správce dat), za účelem předání dotazu z tohoto formuláře Vámi vybranému inzerentovi a zpětného kontaktování mé osoby. Osobní údaje bude správce zpracovávat manuálně i automaticky přímo prostřednictvím svých zaměstnanců. Informace předané tímto formulářem budou uloženy v databázi správce maximálně po dobu 10 let. Odvolání souhlasu s uložením a zpracováním poskytnutých dat lze e-mailem na info@vitio.cz. V případě podezření na neoprávněné použití Vámi poskytnutých údajů máte právo předat podnět k šetření Úřadu pro ochranu osobních údajů. Více informací
Chystáte se prodat nemovitost?
Pomůžeme Vám!
Theleadway banner

Inzerát si prohlédlo 28 lidí

Prodejce

Petr Vančura

Petr Vančura

Hlídací pes

Chcete dostávat emailem podobné nabídky pronájmu obchodních prostor v Praze 4?

Podobné nemovitosti