Prodej pozemku pro bydlení, Praha - Lysolaje, Starodvorská, 1245 m2 (ID: 1844199)

Starodvorská, Praha 6

Rezervováno
Cena na vyžádání /za nemovitost Získejte výhodnou HYPOTÉKU

(cena u makléře)

Exkluzivní partneři v Praze 6

Stěhovací služby

Výkup a prodej starého nábytku

Informace k pozemku

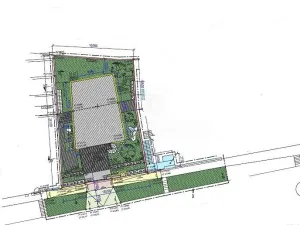
Společnost RE/MAX Future si Vám dovoluje nabídnout exkluzivní stavební pozemek v malebné části Prahy - Lysolaje o rozloze 1245 m2.
Máme tu jedinečnou příležitost nabídnout Vám stavební pozemek situovaný v krásné a klidné lokalitě mezi starší vilovou zástavbou v Praze – Lysolajích v Rezidenční čtvrti. Tato idylická parcela nabízí nádherný výhled do Lysolajského údolí a je ideálním místem pro vaši budoucí stavbu.

Součástí prodeje je i projekt se stavebním povolením na novostavbu rodinného domu se 2 NP a 1PP o velikosti HPP 372 m2 včetně studie zahradních úprav pozemku.

Poloha tohoto pozemku je naprosto výjimečná. V blízkosti najdete veškerou občanskou vybavenost, jako jsou potraviny, restaurace, škola a školka, MHD což zajišťuje pohodlný životní styl pro vás a vaši rodinu. Přístup k pozemku je zajištěn prostřednictvím pohodlné příjezdové komunikace ze zámkové dlažby. Tato cesta je soukromá a slouží pouze několika domům v okolí. Navíc je uzavřena dálkově ovládanou elektrickou branou, což zajišťuje bezpečí a soukromí.
Nejdůležitější je však fakt, že na pozemku již proběhla kompletní příprava. Jsou zde vybudovány veškeré potřebné sítě, včetně elektřiny, plynu, vody a kanalizace, což vám ušetří jak čas, tak i náklady spojené s připojením.
Pokud hledáte ideální místo pro výstavbu vašeho domova v Praze, tento stavební pozemek je pro vás tou správnou volbou. Nezmeškejte tuto vzácnou příležitost a kontaktujte nás co nejdříve, abychom vám mohli poskytnout další informace a domluvit prohlídku. Těšíme se na spolupráci s vámi při realizaci vašich snů o vlastním domově v krásné lokalitě Lysolají.

The company RE/MAX Future allows you to place an exclusive building plot in the picturesque part of Prague - Lysolaje with an area of ​​1245 m2. The building plot is located in a beautiful and quiet location among the residential area in Prague - Lysolajy in the Residential District. This idyllic plot offers a wonderful view of the Lysolaj valley and is an ideal place for your future construction. It is possible to build a house with two above-ground floors on the plot, or another PP.
The location of this property is absolutely exceptional. Nearby you will find all amenities such as groceries, restaurants, school and kindergarten, public transport, which ensures a comfortable lifestyle for you and your family. Access to the land is ensured through a convenient access road made of interlocking paving. This road is private and only serves a few houses in the area. In addition, it is closed by a remote-controlled electric gate, which ensures safety and privacy.
However, the most important thing is the fact that the land has already been fully prepared. The necessary networks are built here, including electricity, gas, water and sewage, which will save you both time and costs associated with the connection.
If you are looking for an ideal place to build your home in Prague, this building plot is the right choice for you. We looking forward to see you..

Parametry pozemku

Stav
Rezervováno
Cena
Cena na vyžádání Spočítat hypotéku
Poznámka k ceně
cena u makléře
Aktualizováno
5. 11. 2025
Adresa
Starodvorská, Praha 6
ID
211-NP03799
Lokalita objektu
Klidná část obce
Plocha pozemku
1245 m2
Komunikace
Dlážděná
Doprava
Vlak, Silnice, MHD
Převod do OV

Kontaktovat makléře

Realitní kancelář

Logo RE/MAX Future

RE/MAX Future

U Koruny 1742/16, Hradec Králové

Chystáte se prodat nemovitost?
Pomůžeme Vám!

Máte zájem o tento pozemek?

Tímto, v souladu s nařízením Evropského parlamentu a Rady (EU) 2016/679, v platném znění, prohlašuji, že mi je alespoň 16 let a uděluji tak svůj souhlas se zpracováním zadaných údajů (jméno, telefon, e-mail, ip adresa) společnosti B3 Technology, s.r.o., IČ: 07330600, se sídlem Novostavby 126/23, 435 11 Lom (správce dat), za účelem předání dotazu z tohoto formuláře Vámi vybranému inzerentovi a zpětného kontaktování mé osoby. Osobní údaje bude správce zpracovávat manuálně i automaticky přímo prostřednictvím svých zaměstnanců. Informace předané tímto formulářem budou uloženy v databázi správce maximálně po dobu 10 let. Odvolání souhlasu s uložením a zpracováním poskytnutých dat lze e-mailem na info@vitio.cz. V případě podezření na neoprávněné použití Vámi poskytnutých údajů máte právo předat podnět k šetření Úřadu pro ochranu osobních údajů. Více informací
Chystáte se prodat nemovitost?
Pomůžeme Vám!

Inzerát si prohlédlo 24 lidí

Prodejce

Markéta Nebeská

Markéta Nebeská

Hlídací pes

Chcete dostávat emailem podobné nabídky prodeje pozemků pro bydlení v Praze 6?

Podobné nemovitosti